AKPL2.2 - Wohnung, Umbau u. Sanierung, Innenausbau, München

2024 hatten wir erneut Gelegenheit, in den beiden modernistischen Gebäuden von Ernst Barth in München-Alt Schwabing, eine der großen Stadtwohnung zu bearbeiten. Diesmal wählten wir eine mehr denkmalpflegerische Herangehensweise. Tatsächlich wurde die Anlage zwischen Münchner Freiheit und dem Garten von Alfred Reich, unter Denkmalschutz gestellt.

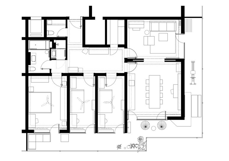
Unsere Idee war, die Wohnung nur mit eher kleinen Veränderungen, mit Verbesserungen, in „die beste Version ihrer selbst“ zu verwandeln. Wir verlegten die Küche ins große Wohnzimmer, um einerseits ein drittes Schlafzimmer zu erzeugen und um andererseits Essen und Kochen in den Mittelpunkt der Wohnung zu rücken. Das kleinere Esszimmer mit Blick ins Grüne wurde zum gemütlichen Wohn- und Musikzimmer.

Alle Parkettböden haben wir ausgebaut und durch Fliesen, Linoleum und Feinsteinzeug ersetzt. Die großen Fenster samt Rollladenkästen, Heizkörpern und Natursteinfensterbänken konnten wir, wie auch die Türen erhalten und haben sie liebevoll restauriert.

Besonders schön ist die dezente Buntheit der Wohnung. Kein Raum, keine Fläche wurde weiß gestrichen. Der "dienende Bereich", Eingang, Diele und Bäder, ist ganz in Elfenbeinweiß gehalten. Die drei Schlafzimmer sind einschließlich dem moosweichen Velour-Teppichboden grün. Und die beiden, über eine Doppelflügeltüre miteinander verbundenen Haupträume, Wohn- und Esszimmer inkl. Küche, sind betongrau gehalten - passend zum rohen Betonboden des umlaufenden Balkons.

Durch feine Zierleisten auf den Türblättern, Ziernuten in den Sockelleisten, die Hohlkehlen, Mahagoni-Holzvertäfelung und Travertinplatten an Böden und Wänden, entstand zusammen mit der teils antiken Möblierung, ein aufwändiger Innenausbau, der zwischen Historismus und Moderne changiert und viele Besucher an den Geschosswohnungsbau in der Innenstadt von Mailand erinnert.