Z19 - Villa, Neubau, München

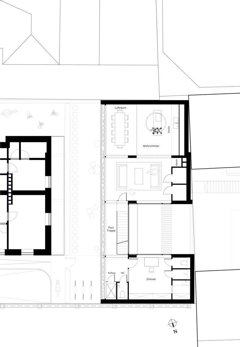
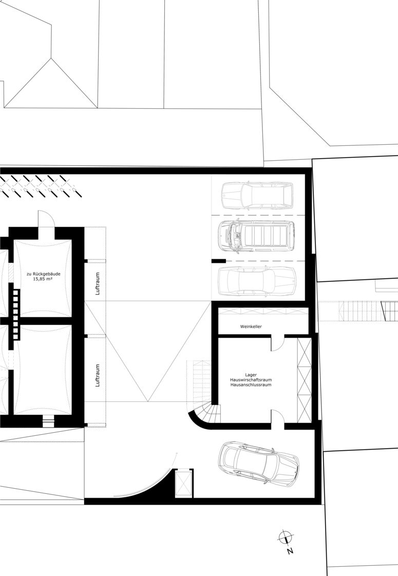
In München-Schwabing soll in einem engen Hinterhof, hinter einen fünfgeschossigen Altbau, ein modernes Einfamilienhaus mit Tiefgarage für den Eigentümer entstehen.

Der Neubau steht auf dem begrünten Dach der Tiefgarage, an drei Seiten an die Grundstücksgrenzen geschoben. Raffiniert wird er über einen verspiegelten Patio mit Wasserbecken und über die begrünte Glasfassade belichtet. Auch die Bewohner des Vorderhauses erhalten so einen Blick ins Grüne.

Die kleine Stadtvilla ist ganz aus Beton, hat zwei Vollgeschosse und eine sog. Laterne auf dem Flachdach mit Terrasse. Das "piano nobile" ist das 1. OG, mit einer Raumhöhe von über 3m und dem Charakter einer umgebauten Werkhalle – einem Loft.

Der Entwurf zeigt, wie es trotz beengter Raumverhältnisse möglich ist das luxuriöse Raumprogramm einer anspruchsvollen Familie zu organisieren, trotz der schwierigen Lichtverhältnissen und innerstädtischen Blickbeziehungen. Ein Schlüssel zum Erfolg ist dabei die vollflächig begrünte Glasfassade: Die Begrünung schützt vor Blicken und Sonne, gleichzeitig ermöglicht das Glas eine lichte Architektur, Übersichtlichkeit und maximale Raumausnutzung.