Haus V - Einfamilienhaus, Neubau, Unterföhring

Haus V ist ein außen sehr roter und innen ziemlich roher Wohnhaus-Solitär in München-Unterföhring. Das Haus befindet sich in zweiter Reihe einer ansonsten überaus langweiligen Siedlung aus der Nachkriegszeit. Im Norden schließt der weitläufige und aufgrund der Fernwärmetrasse unbebaubare Grünzug des Heizkraftwerks Nord an.

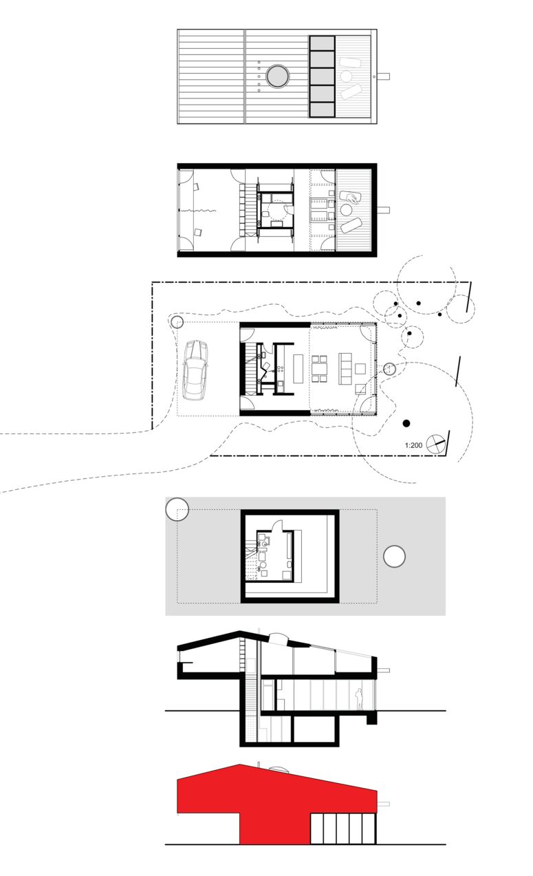
Die Bauherrin liebte Design, der Bauherr Technik, beide liebten Autos. Für die Form von Haus V inspirierte uns der James-Bond-Sportwagen Lotus Esprit. Fassaden, Tragwerk, Raumgefüge und die Trassierung der technischen Gebäudeausstattung entsprechen einander und bilden in der T-Form des Gebäudes eine systematische Einheit. Durch diese klare, sich innen und außen entsprechende Form entsteht strukturell eine hohe Effizienz und echte Einfachheit.

Haus V ist ein innovatives Niedrigenergie- bzw. Passivhaus und könnte der Prototyp einer ganzen Serie sein: Der Entwurf funktioniert nämlich sowohl als Solitär als auch als Doppelhaus oder, beliebig oft aneinandergereiht, als Reihenhaus. Der Entwurf von Haus V ist das Ergebnis unserer fortwährenden Suche nach dem idealen Wohnen, dem Wohnen von heute.

Haus V ist ein echtes „Haus der Gegenwart“ (Titel des Architekturwettbewerbs vom SZ-Magazin, 2001), es ist ein architektonisches Statement, ein „Haus wie ein Ausrufezeichen“ (Münchner Merkur, 2010).

2013 diente unser Haus V auch als Filmkulisse im ersten Eberhofer-Krimi von Rita Falk, dem "Dampfnudelblues", s. Screenshots.