W23 - zwei Doppelhäuser, Neubau, München

In München-Moosach entstehen in Holzbauweise zwei neue Doppelhäuser für Familien. Atmosphärisches und städtebauliches Vorbild für den Entwurf war ein schwedisches Gehöft: Zusammen mit dem Carport bilden die beiden Doppelhäuser eine Art Platz oder Hof. Die Erschließungsfläche ist so keine karge Asphaltwüste sondern wie der Garten auch ein lebenswerter Außenraum.

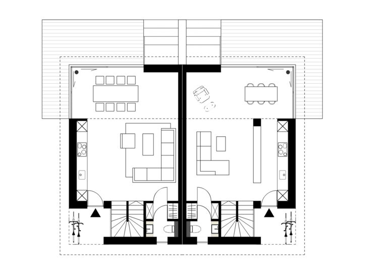
Der gesamte Keller wird wasserdicht aus Beton errichtet, über die Innen- und eine Außentreppe wird ein attraktiver Hobbyraum erschlossen. Der Hochbau ist eine reine Holzkonstruktion, verkleidet mit einer rot lasierten Bretterschalung.

Das EG ist als offener loftartiger Raum mit großer Terrasse organisiert. Im 1. OG befinden sich zwei Schlafzimmer mit eigenen Bädern, im Dach ein gemütliches Studio für Gäste oder die Eltern, mit eigenem Bad und großem Atelierfenster.

Der Entwurf ermöglicht verschiedene Lebenssituationen und zugleich ein sowohl eigenständiges introvertiertes Wohnen, als auch ein gemeinsames extrovertiertes Erleben des ländlichen Ortes: Der Garten wird wie eine gemeinsam genutzte Streuobstwiese funktionieren, die Kinder der Häuser können hier gemeinsam aufwachsen, barfuß toben und Natur hautnah erleben.